一、安装与使用:
1. 本挡板门垂直安装在水平烟道上,如果空间允许均采用正装法(特殊情况根据现场情况定)。安装在原烟气烟道上采用法兰连接,烟道和法兰进行焊接,安装在湿烟气烟道取消法兰,采用直焊法,易方便做玻璃鳞片防腐。 挡板门底部安装有疏水阀,安装时疏水阀一侧靠近脱硫塔。
2.检查各螺纹连接是否有松懈,并调节拧紧;
3.安装在脱硫塔出口烟道的挡板门,需安装后做玻璃鳞片防腐。
4.安装时,确保挡板门处于关闭状态;禁止硬拉、硬拽以防止框架变形而影响到密封效果。
5、客户如无特殊要求,在脱硫塔烟气出口烟道上的挡板门安装完毕后,需做玻璃鳞片防腐(由使用方现场制作),做玻璃鳞片部分为焊缝及未衬不锈钢板部分。
6、当挡板门安装时,使用方根据操作箱的安置位置提供电源线、限位线,
如需远程控制要求的,由使用方提供DCS信号线至挡板门控制箱处(注:控制箱根据客户要求配置)。
7、挡板门安装前需将油站内加入适量的液压油,冬季加32#液压油、其余季节加入46#液压油。
8、安装在脱硫塔入口烟道上的挡板门采用法兰连接;安装在脱硫塔出口烟道上的挡板门,采用直焊式。
9、为了检修方便,建议在挡板门下游管道上开一个人孔便于检修。另外在阀体框架上部三角架下安装一个检修平台,可用钢管焊接制作。
10、如果接入DCS,通过电脑端控制挡板门开启,应对现场限位器定期检查,确保限位器可靠能用,避免出现开过关过现象。
11、宽度超过3.5米的挡板门结构为两扇拼装,需要使用方现场组装整体后再安装,组装缝隙需焊接。(见示意图)


12.液压站以油管的长度及操作维护方便为条件安置在挡板门旁的固定平台上,平台根据施工现场条件定安置位置,并做好防雨装置。
13.操作箱安装在易操作位置,以现场环境定安置位置,并做好防雨装置。
14.焊接要严禁焊接变形,焊接采用断焊循环法达到满焊。一次焊接长度不易超过150mm。
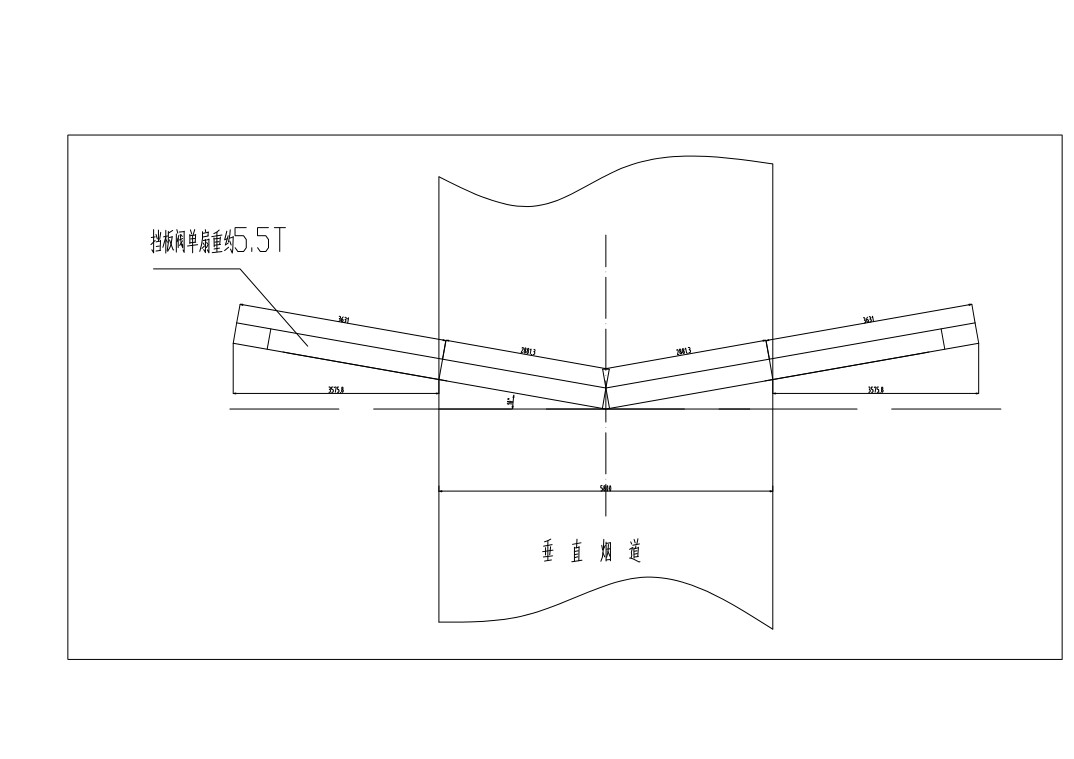
二、垂直烟道挡板门安装与使用:


组装尺寸及角度
1. 本挡板门安装在垂直烟道上时采用倾斜安装法。安装在脱硫塔出口烟道时,拼接时采用满焊式焊接。
2.安装在脱硫塔出口烟道的挡板门,需安装后做玻璃鳞片防腐。
3.安装时,确保挡板门处于关闭状态;禁止硬拉、硬拽以防止框架变形而影响到密封效果。
4.客户如无特殊要求,在脱硫塔烟气出口烟道上的挡板门安装完毕后,需做玻璃鳞片防腐(由使用方现场制作),做玻璃鳞片部分为焊缝及未衬不锈钢板部分。
5.当挡板门安装时,使用方根据操作箱的安置位置提供电源线、限位线,如需远程控制要求的,由使用方提供DCS信号线至挡板门控制箱处(注:控制箱根据客户要求配置)。
6.挡板门安装前需将油站内加入适量的液压油,冬季加32#液压油、其余季节加入46#液压油。
7.安装在脱硫塔出口烟道上的挡板门,采用直焊式。
8.液压站以油管的长度及操作维护方便为条件安置在挡板门旁的固定平台上,平台根据施工现场条件定安置位置,并做好防雨装置。
9.操作箱安装在易操作位置,以现场环境定安置位置,并做好防雨装置。
10.焊接要严禁焊接变形,焊接采用断焊循环法达到满焊。一次焊接长度不超过150mm。
三、维护:
1.本挡板门应存放在干燥通风的室内,做到防潮、防雨、防锈。
2.挡板门存放与运输时启闭件应处于关闭位置。
3.长久放置时应定期检查。对阀杆表面、密封面、两端法兰上的污垢和锈迹进行检查后,重新涂刷防锈油及予以防护。
四、定期检查
挡板门在使用期间应定期检查如下项目,发现问题及时修理。
1.紧固件是否被均匀坚固。
2. 密封条是否被严重磨损。
3. 电气部分是否有断电、连电现象。
4. 油站内是否缺少液压油。
5 密封面是否被损坏或严重磨损(停车检修)。
6. 壳体是否被严重腐蚀或磨损,导致壳体明显变薄,甚至出现渗漏,如果出现这些现象,应报废(停车检修)。